Cruze |
||||||||
|
|
|
|||||||

Master Electrical Component List
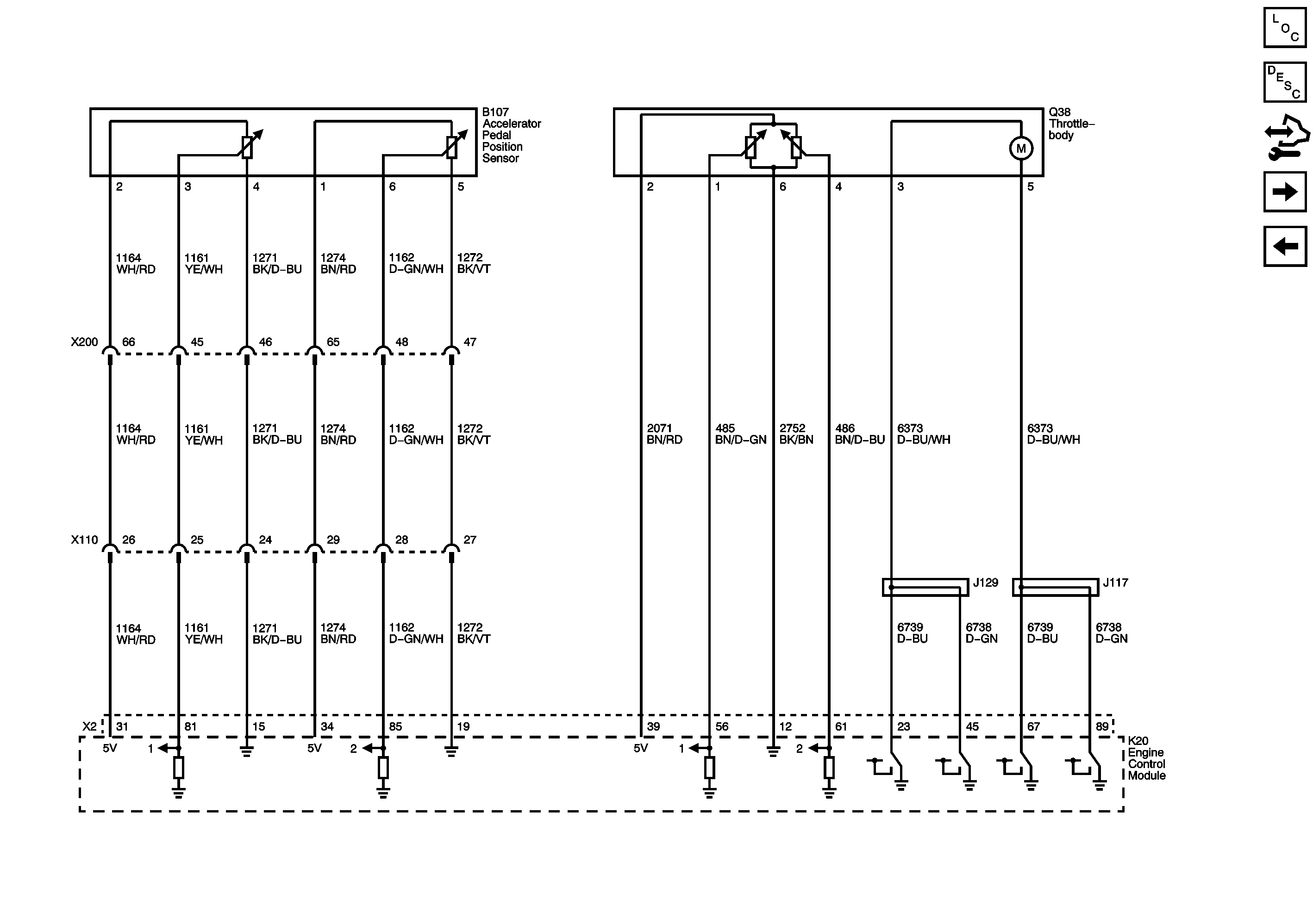
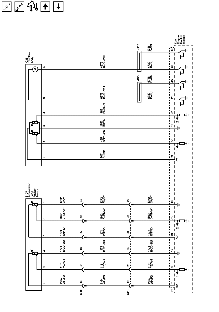
Engine Control Module Description
Oxygen Sensors and Ignition System
Engine Data Sensors - Pressure and Temperature Controls
Electrical Centre Identification Views
F8UA, F9UA, F10UA, and F11UA Fuses
F16UA, F17UA, F18UA, F20UA, F52UA, F54UA, and F57UA Fuses
Electrical Centre Identification Views
G107, G111, and G112 (2H0 or LXV)
| © Copyright Chevrolet. All rights reserved |