Cruze |
||||||||
|
|
|
|||||||

Master Electrical Component List
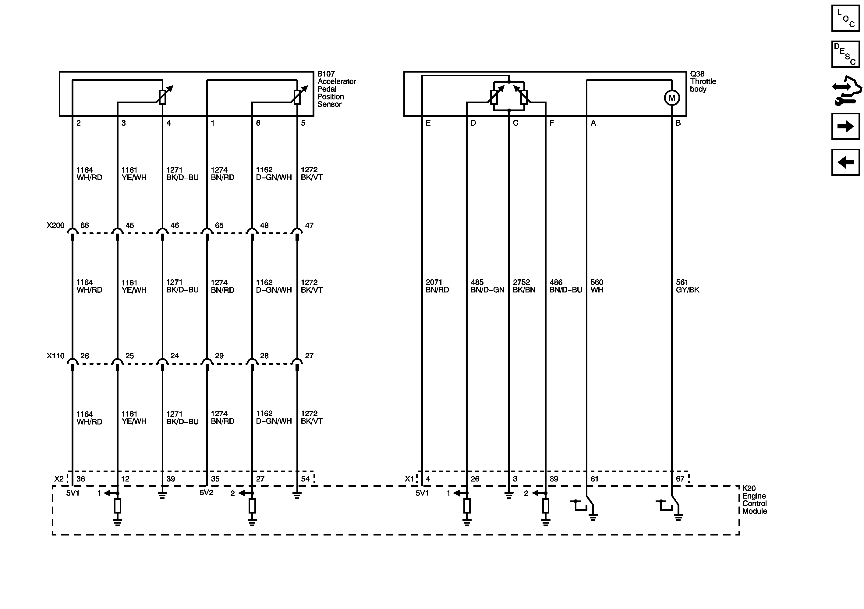
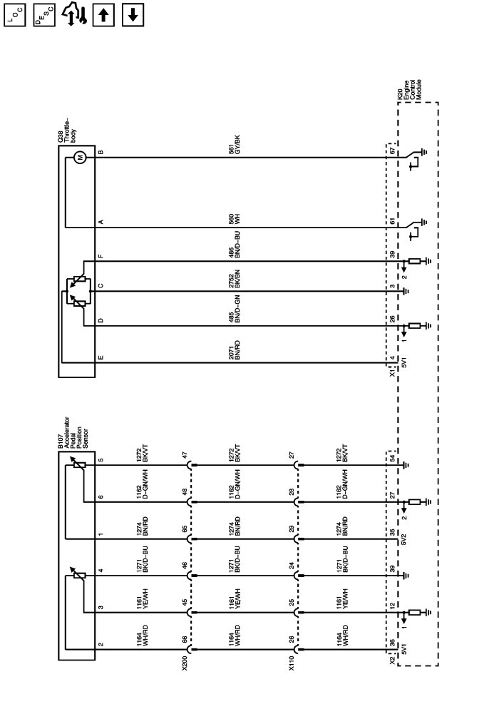
Engine Control Module Description
Oxygen Sensors and Ignition System
Engine Data Sensors - Pressure and Temperature
Electrical Centre Identification Views
F8UA, F9UA, F10UA, and F11UA Fuses
F16UA, F17UA, F18UA, F20UA, F52UA, F54UA, and F57UA Fuses
Electrical Centre Identification Views
| © Copyright Chevrolet. All rights reserved |