To the top of the document
Cruze
   
GMDE Start Page Load static TOC Load dynamic TOC Help?

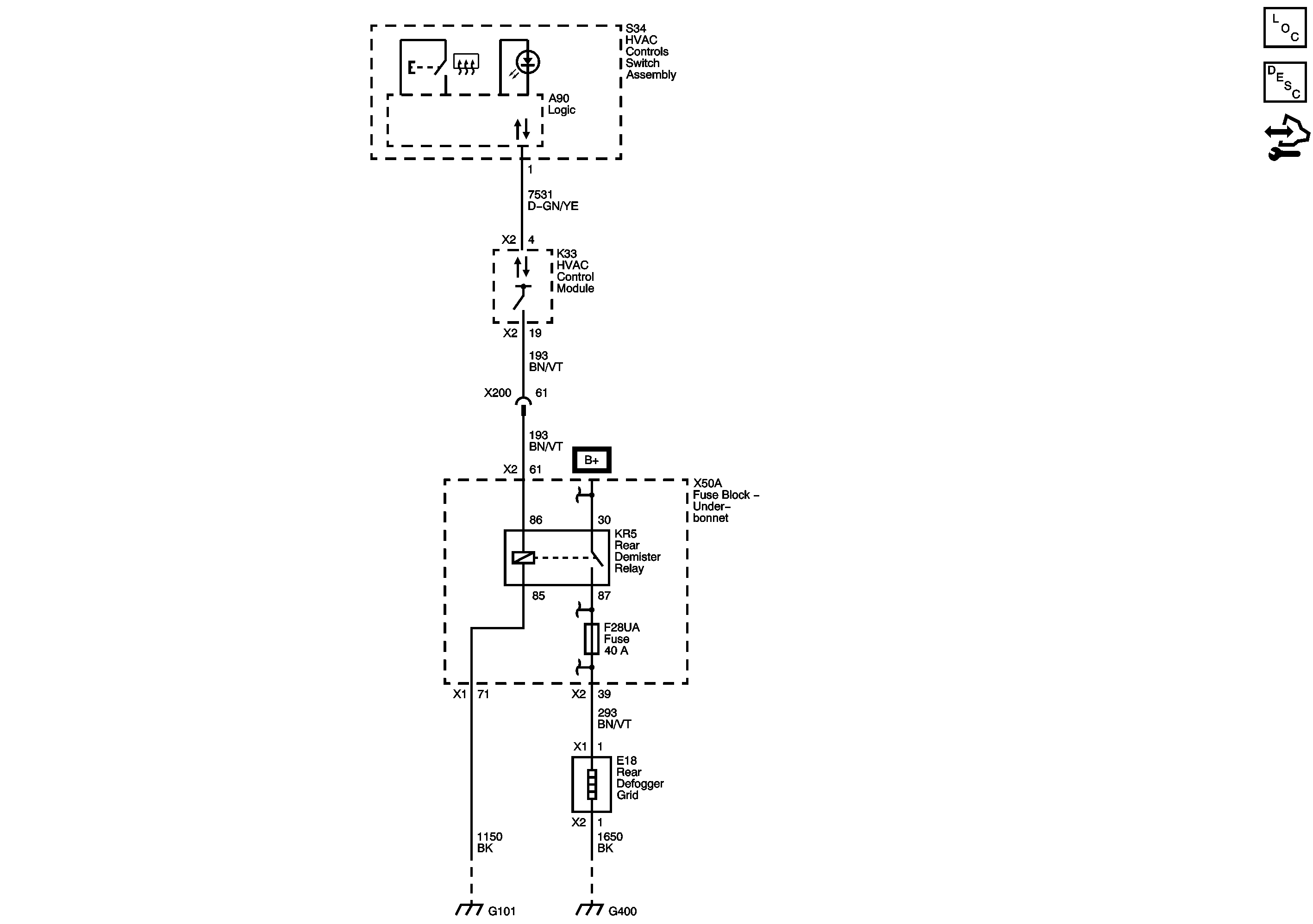
Defogger Schematics

Defogger



            |                         |            
2443421EN.png

Display graphic

Master Electrical Component List

Rear Window Defogger Description and Operation

Control Module References

Electrical Centre Identification Views

F28UA, F37UA, F38UA, F51UA, F56UA, and F60UA Fuses

G100, G101, and G102

G400 and G402

   


© Copyright Chevrolet. All rights reserved