To the top of the document
Cruze
   
GMDE Start Page Load static TOC Load dynamic TOC Help?

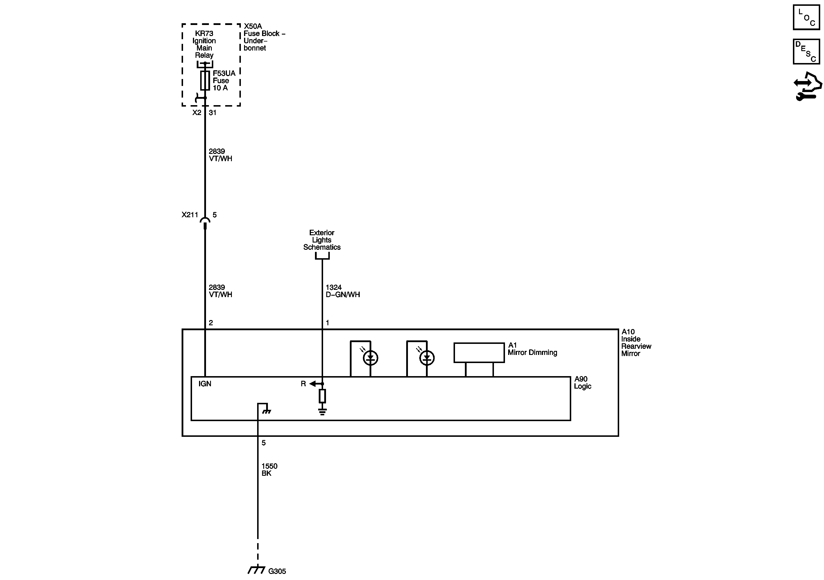
Inside Rearview Mirror Schematics

DD8



            |                         |            
2443447EN.png

Display graphic

Master Electrical Component List

Automatic Day-Night Mirror Description and Operation

Control Module References

Power Moding Schematics

F5UA, F13UA, F53UA, and F65UA Fuses

Reversing Lamps

G204 and G305

   


© Copyright Chevrolet. All rights reserved