Cruze |
||||||||
|
|
|
|||||||

Master Electrical Component List
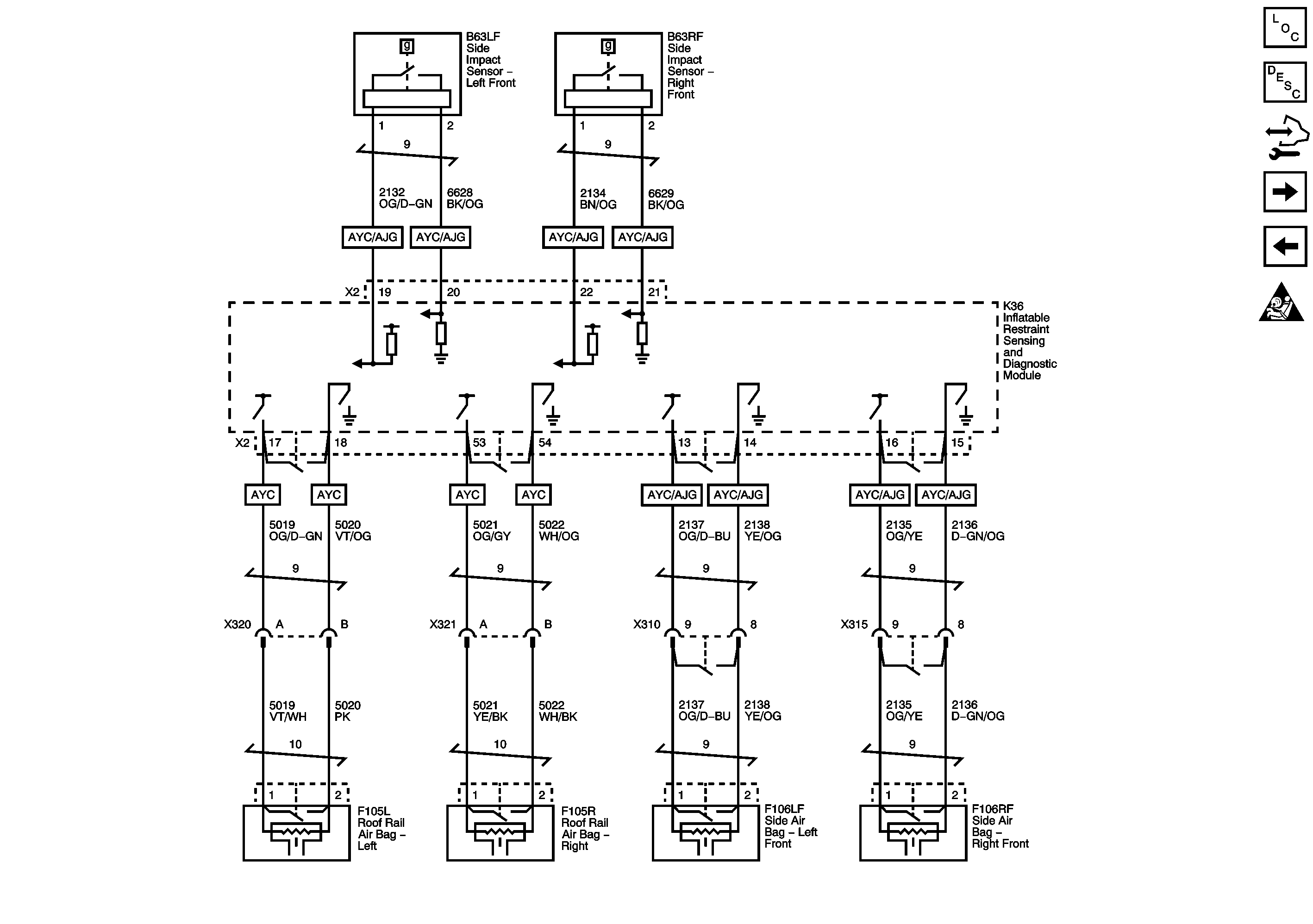
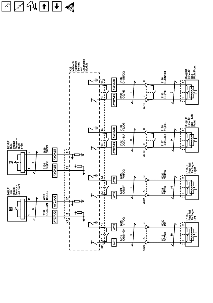
SIR System Description and Operation
Air Bag Indicator and Disable Switch (C99)
Front Impact Sensor, Retractors, and Driver/Passenger Air Bags
Master Electrical Schematic Icons
| © Copyright Chevrolet. All rights reserved |