To the top of the document
Cruze
   
GMDE Start Page Load static TOC Load dynamic TOC Help?

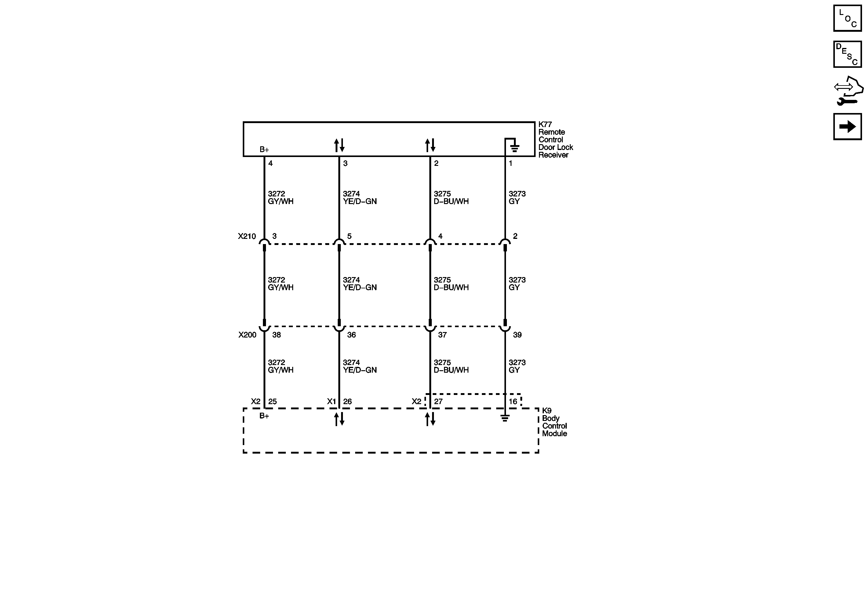
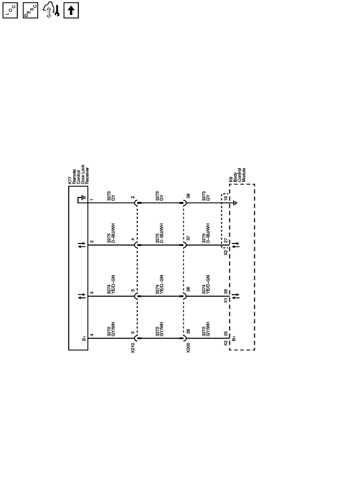
Keyless Entry (without ATH)



            |                         |            
2443759EN.png

Display graphic

Master Electrical Component List

Keyless Entry System Description and Operation with ATH

Control Module References

Keyless and Passive Entry (ATH)

Master Electrical Schematic Icons

   


© Copyright Chevrolet. All rights reserved