To the top of the document
Cruze
   
GMDE Start Page Load static TOC Load dynamic TOC Help?

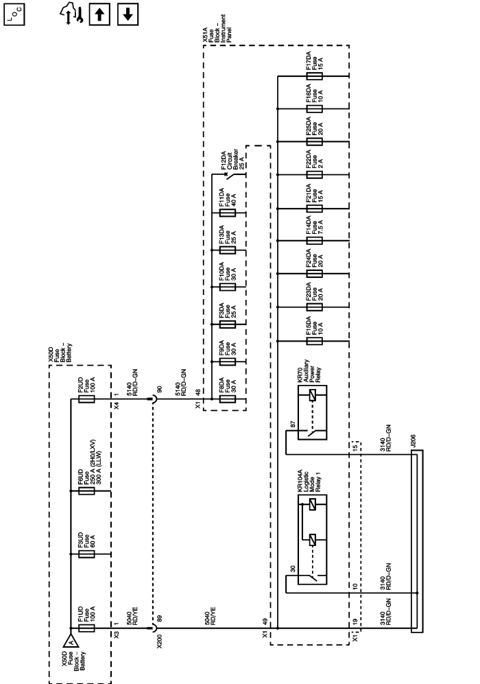
B+ Bus (3 of 3)



            |                         |            
2443718EN.png

Display graphic

Master Electrical Component List

Control Module References

F2UA, F21UA, F25UA, F27UA, F31UA, F32UA, F34UA, F35UA, F69UA, and F70UA Fuses

B+ Bus (2 of 3)

   


© Copyright Chevrolet. All rights reserved