To the top of the document
Cruze
   
GMDE Start Page Load static TOC Load dynamic TOC Help?

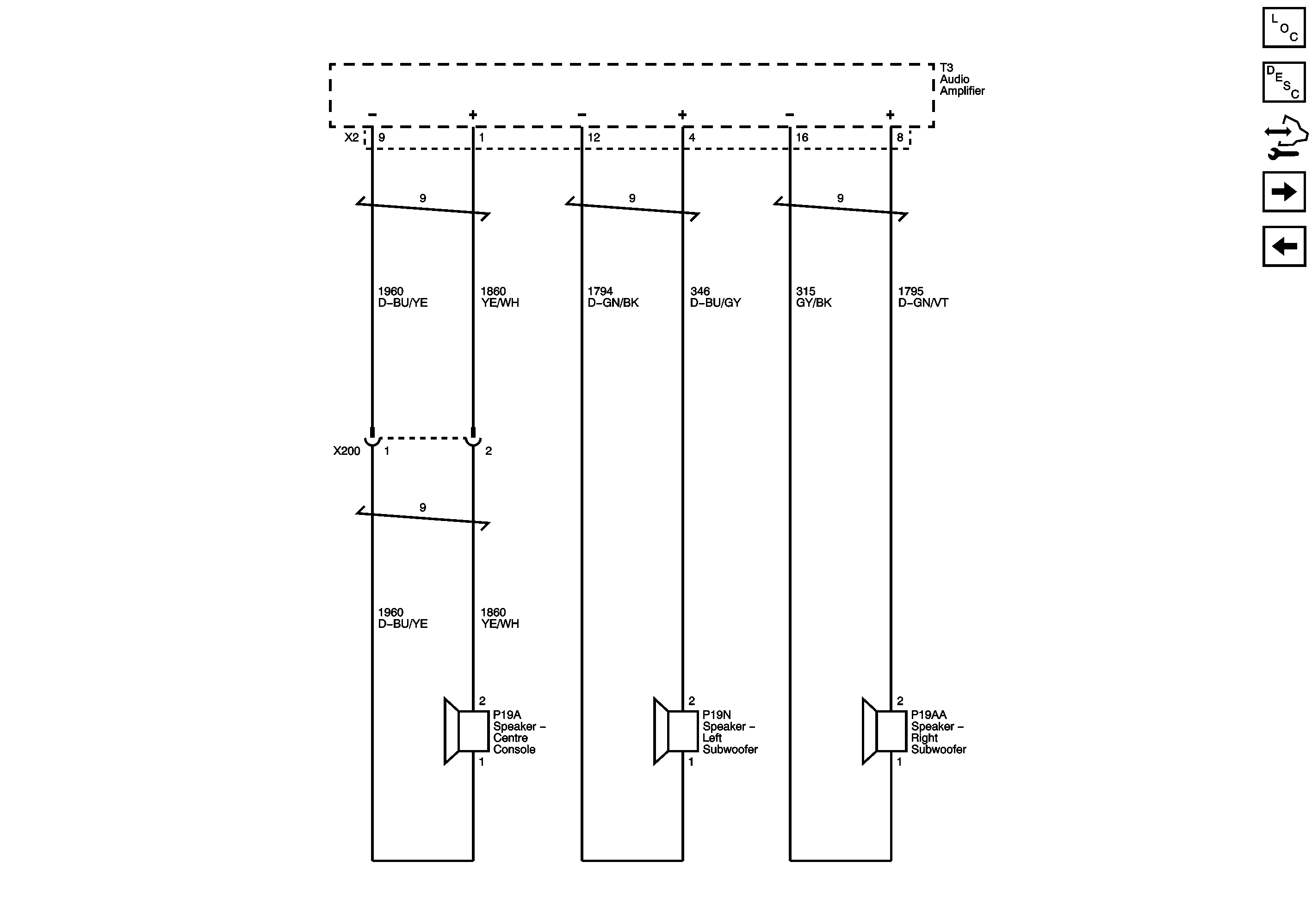
Centre Speaker and Subwoofer (UQG)



            |                         |            
2443509EN.png

Display graphic

Master Electrical Component List

Radio/Audio System Description and Operation

Control Module References

Navigation System (UXW)

Door Speakers (RHD with UQG)

Master Electrical Schematic Icons

   


© Copyright Chevrolet. All rights reserved