To the top of the document
Cruze
   
GMDE Start Page Load static TOC Load dynamic TOC Help?

Transmission System Description and Operation

The F40-6 is a 6-speed manual gearbox. This manual gearbox is an all-synchromesh 3-shaft transmission.


2190494

This 3-shaft transmission has the following advantages:

    • Compact construction
    • Improved smooth-running performance
    • Better shift quality
    • High torque transmission

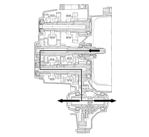
Location of the Shafts

The following cross-sectional diagram shows the location of the respective shafts in the M32-6 gearbox, as per the 3-shaft principle.


2190495
    • Upper main shaft (1)
    • Input shaft (2)
    • Lower main shaft (3)
    • Differential gear (4)

In this transmission angular cone bearings are used for all shafts. These bearings require a certain amount of play and pretension. The required amount of bearing play and pretension is achieved at the production stage by using shims under the angular cone bearing in the transmission housing.

Location of the Gear Wheels

This diagram shows the location of the gear wheels on the respective shaft.


2190496

Lower main shaft

Input shaft with 1st/2nd gear

Upper main shaft

1

1st gear wheel

5

3rd/5th gear wheel

8

4th gear wheel

2

2nd gear wheel

6

6th gear wheel

9

3rd gear wheel

3

5th gear wheel

7

4th gear wheel

10

Reverse gear wheel

4

6th gear wheel

--

--

--

--

A particular benefit of this 3-shaft transmission is that the gear wheel for 3rd gear is also used for 5th gear.

Power Flow in the Individual Gears

The following diagrams shows the flow of power in the individual gears.

1st Gear


2190497

2nd Gear


2190498

3rd Gear


2190499

4th Gear


2190500

5th Gear


2190501

6th Gear


2190502

Reverse Gear


2190503

2190505

The gears of the F40-6 gearbox will be shifted via a cable linkage system.

   


© Copyright Chevrolet. All rights reserved